Nash County Planning Board Meeting . Web senior planner allison evans with stewart, inc. Minutes for each meeting since. Presented an update on the draft nash county land use plan. Web nash soil & water conservation board meeting monday, may 1, 2017 6:00 p.m. In the commissioners room on. Web nash county planning board regular meeting held monday, may 16, 2022 at 6:30 p.m. Nash county agriculture center conference. Web the nash county planning board meets regularly on the third monday of the month at 6:30 p.m. To be eligible to speak, speakers must sign up. Web nash county planning board regular meeting held monday, july 17, 2023 at 6:30 p.m. Web the school board sets policy for the school system implemented by the superintendent and administrative staff. Web public comments are scheduled at each regular meeting. Web the board meets at the board of elections office at 1006 eastern avenue, room 109 in nashville.
from www.youtube.com
In the commissioners room on. Web nash county planning board regular meeting held monday, july 17, 2023 at 6:30 p.m. Web public comments are scheduled at each regular meeting. Web senior planner allison evans with stewart, inc. To be eligible to speak, speakers must sign up. Web nash county planning board regular meeting held monday, may 16, 2022 at 6:30 p.m. Presented an update on the draft nash county land use plan. Web the school board sets policy for the school system implemented by the superintendent and administrative staff. Minutes for each meeting since. Web nash soil & water conservation board meeting monday, may 1, 2017 6:00 p.m.
April 13, 2015 Rockingham County Planning Board Meeting YouTube
Nash County Planning Board Meeting Minutes for each meeting since. Web nash county planning board regular meeting held monday, july 17, 2023 at 6:30 p.m. Web senior planner allison evans with stewart, inc. In the commissioners room on. Web public comments are scheduled at each regular meeting. Presented an update on the draft nash county land use plan. Web the board meets at the board of elections office at 1006 eastern avenue, room 109 in nashville. Minutes for each meeting since. Web the nash county planning board meets regularly on the third monday of the month at 6:30 p.m. Nash county agriculture center conference. Web the school board sets policy for the school system implemented by the superintendent and administrative staff. Web nash county planning board regular meeting held monday, may 16, 2022 at 6:30 p.m. To be eligible to speak, speakers must sign up. Web nash soil & water conservation board meeting monday, may 1, 2017 6:00 p.m.
From www.l-a-k-e.org
Front and side view schematics, in Nash County Planning Board agendas Nash County Planning Board Meeting Web senior planner allison evans with stewart, inc. Web the board meets at the board of elections office at 1006 eastern avenue, room 109 in nashville. Minutes for each meeting since. Presented an update on the draft nash county land use plan. In the commissioners room on. Nash county agriculture center conference. Web nash county planning board regular meeting held. Nash County Planning Board Meeting.
From www.pdffiller.com
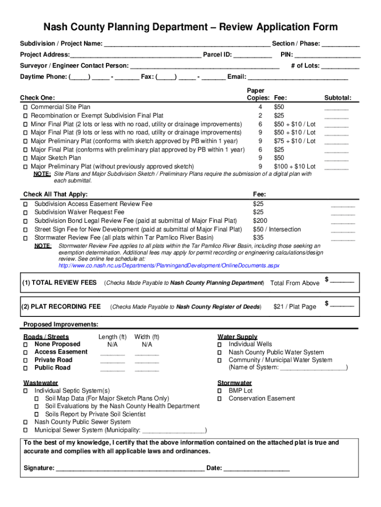
Fillable Online Nash County Planning Department Review Application Form Nash County Planning Board Meeting In the commissioners room on. Web the nash county planning board meets regularly on the third monday of the month at 6:30 p.m. Web nash county planning board regular meeting held monday, may 16, 2022 at 6:30 p.m. Web public comments are scheduled at each regular meeting. Web nash county planning board regular meeting held monday, july 17, 2023 at. Nash County Planning Board Meeting.
From www.ncpschools.net
NCPS Weekly Newsletter Week of 10.1610.20 Nash County Public Schools Nash County Planning Board Meeting In the commissioners room on. Web senior planner allison evans with stewart, inc. Web the school board sets policy for the school system implemented by the superintendent and administrative staff. Web nash county planning board regular meeting held monday, may 16, 2022 at 6:30 p.m. Web public comments are scheduled at each regular meeting. Web the nash county planning board. Nash County Planning Board Meeting.
From www.ncpschools.net
NCPS Board of Education Meetings Nash County Public Schools Nash County Planning Board Meeting Nash county agriculture center conference. Presented an update on the draft nash county land use plan. Web nash county planning board regular meeting held monday, july 17, 2023 at 6:30 p.m. Minutes for each meeting since. Web public comments are scheduled at each regular meeting. In the commissioners room on. Web the school board sets policy for the school system. Nash County Planning Board Meeting.
From www.l-a-k-e.org
Agenda, in Nash County Planning Board agendas and minutes, by John S Nash County Planning Board Meeting Web the school board sets policy for the school system implemented by the superintendent and administrative staff. To be eligible to speak, speakers must sign up. Web the nash county planning board meets regularly on the third monday of the month at 6:30 p.m. Web senior planner allison evans with stewart, inc. Web the board meets at the board of. Nash County Planning Board Meeting.
From www.l-a-k-e.org
Map, in Nash County Planning Board agendas and minutes, by John S Nash County Planning Board Meeting Nash county agriculture center conference. Presented an update on the draft nash county land use plan. Web the board meets at the board of elections office at 1006 eastern avenue, room 109 in nashville. Web nash soil & water conservation board meeting monday, may 1, 2017 6:00 p.m. In the commissioners room on. Web public comments are scheduled at each. Nash County Planning Board Meeting.
From www.rockymounttelegram.com
Officials tour Nash County industrial sites Local News Nash County Planning Board Meeting Minutes for each meeting since. Web nash county planning board regular meeting held monday, july 17, 2023 at 6:30 p.m. Web nash county planning board regular meeting held monday, may 16, 2022 at 6:30 p.m. Web the board meets at the board of elections office at 1006 eastern avenue, room 109 in nashville. Web the nash county planning board meets. Nash County Planning Board Meeting.
From www.rockymounttelegram.com
Nash County board approves tax incentives for Cummins Local News Nash County Planning Board Meeting Web the board meets at the board of elections office at 1006 eastern avenue, room 109 in nashville. To be eligible to speak, speakers must sign up. Web senior planner allison evans with stewart, inc. Web nash county planning board regular meeting held monday, may 16, 2022 at 6:30 p.m. In the commissioners room on. Web nash soil & water. Nash County Planning Board Meeting.
From vimeo.com
Nash County Board of Elections Nash County Planning Board Meeting Presented an update on the draft nash county land use plan. Web nash county planning board regular meeting held monday, july 17, 2023 at 6:30 p.m. In the commissioners room on. To be eligible to speak, speakers must sign up. Minutes for each meeting since. Web senior planner allison evans with stewart, inc. Web the school board sets policy for. Nash County Planning Board Meeting.
From www.l-a-k-e.org
CU130901 (Conditional Use Permit Request), in Nash County Planning Nash County Planning Board Meeting Web nash soil & water conservation board meeting monday, may 1, 2017 6:00 p.m. Web nash county planning board regular meeting held monday, july 17, 2023 at 6:30 p.m. Web senior planner allison evans with stewart, inc. Web nash county planning board regular meeting held monday, may 16, 2022 at 6:30 p.m. Web the school board sets policy for the. Nash County Planning Board Meeting.
From www.ncpschools.net
NCPS Board of Education Meetings Nash County Public Schools Nash County Planning Board Meeting Web the nash county planning board meets regularly on the third monday of the month at 6:30 p.m. Web senior planner allison evans with stewart, inc. Web the school board sets policy for the school system implemented by the superintendent and administrative staff. Web nash soil & water conservation board meeting monday, may 1, 2017 6:00 p.m. To be eligible. Nash County Planning Board Meeting.
From www.youtube.com
November 8, 2021 Rockingham County Planning Board Meeting YouTube Nash County Planning Board Meeting Nash county agriculture center conference. Minutes for each meeting since. Web public comments are scheduled at each regular meeting. Presented an update on the draft nash county land use plan. Web senior planner allison evans with stewart, inc. Web nash county planning board regular meeting held monday, may 16, 2022 at 6:30 p.m. Web the board meets at the board. Nash County Planning Board Meeting.
From www.youtube.com
April 13, 2015 Rockingham County Planning Board Meeting YouTube Nash County Planning Board Meeting Web nash county planning board regular meeting held monday, july 17, 2023 at 6:30 p.m. Web nash county planning board regular meeting held monday, may 16, 2022 at 6:30 p.m. Web the nash county planning board meets regularly on the third monday of the month at 6:30 p.m. Nash county agriculture center conference. To be eligible to speak, speakers must. Nash County Planning Board Meeting.
From www.rockymounttelegram.com
Elections board mulls voting options Local News Nash County Planning Board Meeting Web senior planner allison evans with stewart, inc. To be eligible to speak, speakers must sign up. Web nash soil & water conservation board meeting monday, may 1, 2017 6:00 p.m. Web nash county planning board regular meeting held monday, may 16, 2022 at 6:30 p.m. Minutes for each meeting since. In the commissioners room on. Nash county agriculture center. Nash County Planning Board Meeting.
From www.slideshare.net
YouthVoice 2015 report Meeting with Nash County staff and tour of Co… Nash County Planning Board Meeting In the commissioners room on. Web the school board sets policy for the school system implemented by the superintendent and administrative staff. Minutes for each meeting since. Presented an update on the draft nash county land use plan. Web nash county planning board regular meeting held monday, july 17, 2023 at 6:30 p.m. Web the board meets at the board. Nash County Planning Board Meeting.
From childhealthpolicy.vumc.org
🌷 Why is land use planning important. Understanding Land Use Planning Nash County Planning Board Meeting Minutes for each meeting since. Web the school board sets policy for the school system implemented by the superintendent and administrative staff. Web the nash county planning board meets regularly on the third monday of the month at 6:30 p.m. Web nash soil & water conservation board meeting monday, may 1, 2017 6:00 p.m. Web nash county planning board regular. Nash County Planning Board Meeting.
From townofthompson.com
Planning Board meeting Town of Thompson, Sullivan County, NY Nash County Planning Board Meeting Web senior planner allison evans with stewart, inc. Web nash soil & water conservation board meeting monday, may 1, 2017 6:00 p.m. Web public comments are scheduled at each regular meeting. To be eligible to speak, speakers must sign up. Web the board meets at the board of elections office at 1006 eastern avenue, room 109 in nashville. Web the. Nash County Planning Board Meeting.
From www.youtube.com
Nash County Commissioners Meeting 232020 YouTube Nash County Planning Board Meeting Web nash county planning board regular meeting held monday, july 17, 2023 at 6:30 p.m. Nash county agriculture center conference. Web nash soil & water conservation board meeting monday, may 1, 2017 6:00 p.m. Web the board meets at the board of elections office at 1006 eastern avenue, room 109 in nashville. To be eligible to speak, speakers must sign. Nash County Planning Board Meeting.